Vorderhaus

Hoch-Parterre

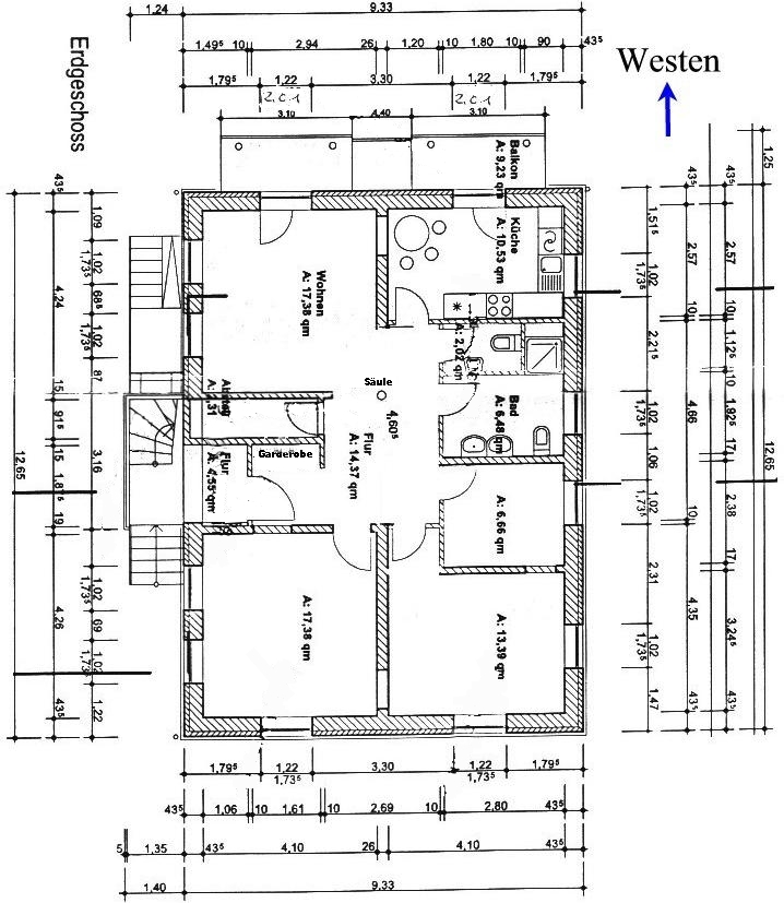
Wohnzimmer und Diele gehen ineinander über und wirken als einziger Raum. Alle anderen Räume sind von hier zu erreichen. Eine Zeichnung mit Maßen entsprechend der genehmigten Bauzeichnung findet sich weiter unten; im Detail ist mit kleinen Abweichungen zu rechnen, die sich bei der Bausausführung ergeben haben oder bei der Genehmigung verändert wurden.